1
2
этаж
II этап строительства
4 квартал 2026 г.
I этап строительства
4 квартал 2025 г.
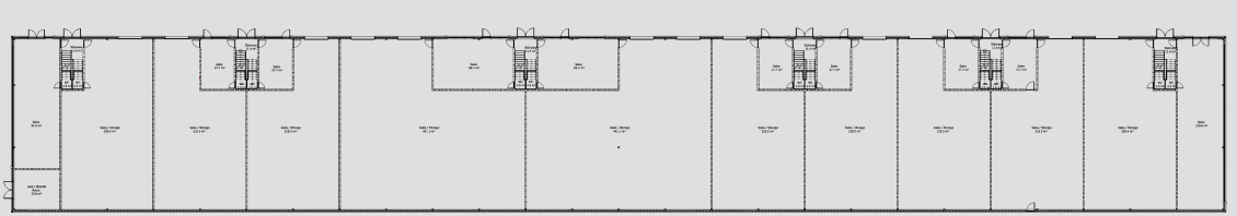
21
Свободно
Свободно
22
23
Свободно
Свободно
24
25
Свободно
Свободно
26
27
Свободно
Свободно
28
36
Свободно
Свободно
35
34
Свободно
Свободно
33
37
Свободно
Свободно
38
39
Свободно
Свободно
40
32
Свободно
Свободно
31
30
Свободно
Свободно
29
222,0
219,4
314,0
219,3
311,4
222,1
219,4
443,3
213,0
27,4
65,7
27,4
27,4
65,7
27,4
27,4
27,4
219,4
27,4
255,1
255,1
41
Свободно
Свободно
42
43
Свободно
Свободно
44
45
Свободно
Свободно
46
47
Свободно
Свободно
48
56
Свободно
Свободно
55
54
Свободно
Свободно
53
57
Свободно
Свободно
58
59
Свободно
52
Свободно
Свободно
51
50
Свободно
Свободно
49
218,4
318,0
314,0
219,4
219,3
314,0
213,0
219,4
222,0
27,4
65,7
65,7
219,4
27,4
27,4
65,7
27,4
255,1
27,4
219,4
27,4
II этап строительства
1 квартал 2027 г.
I этап строительства
1 квартал 2026 г.
1
Свободно
Свободно
2
3
Свободно
Свободно
4
5
Свободно
Свободно
6
статус
7
Свободно
Свободно
8
16
Свободно
Свободно
15
14
Свободно
Свободно
13
17
Свободно
Свободно
18
19
Свободно
Свободно
20
12
Свободно
Свободно
11
10
Свободно
Свободно
9
258,8
27,9
27,9
66,9
офис
27,9
27,9
27,9
66,9
258,8
27,9
27,9
66,9
258,8
27,9
27,9
66,9
27,9
27,9
27,9
66,9
склад
шоурум
Нажмите, чтобы посмотреть планировку
32
Свободно
Свободно
31
258,8
27,9
21
Свободно
Свободно
22
23
Свободно
Свободно
24
25
Свободно
Свободно
26
27
Свободно
Свободно
28
30
Свободно
Свободно
29
27,9
27,9
27,9
66,9
66,9
27,9
27,9
27,9
27,9
66,9
II этап строительства – 1 квартал 2027
I этап строительства – 1 квартал 2026
Свободно
Свободно
Свободно
Свободно
Свободно
Свободно
статус
Свободно
Свободно
Свободно
Свободно
Свободно
Свободно
Свободно
Свободно
Свободно
Свободно
Свободно
Свободно
Свободно
Свободно
офис
1
217,1
219,4
2
шоурум
3
27,4
склад
27,4
4
5
222,1
311,4
6
7
65,7
27,4
8
16
65,7
65,7
15
14
317,9
218,4
13
17
314,0
219,4
18
19
27,4
27,4
20
12
27,4
27,4
11
10
219,4
222,1
9
Нажмите, чтобы посмотреть планировку
Свободно
Свободно
Свободно
Свободно
Свободно
Свободно
Свободно
Свободно
Свободно
Свободно
Свободно
Свободно
Свободно
Свободно
Свободно
Свободно
Свободно
Свободно
Свободно
Свободно
21
222,0
219,4
22
23
27,4
65,7
24
25
314,0
219,3
26
27
27,4
27,4
28
36
65,7
311,4
35
34
27,4
27,4
33
37
27,4
222,1
38
39
219,4
219,4
27,4
40
32
443,3
255,1
31
30
255,1
213,0
29
Свободно
Свободно
Свободно
Свободно
Свободно
Свободно
Свободно
Свободно
Свободно
Свободно
Свободно
Свободно
Свободно
Свободно
Свободно
Свободно
Свободно
Свободно
Свободно
41
27,4
218,4
42
43
318,0
65,7
44
45
65,7
314,0
46
47
219,4
219,4
27,4
48
56
27,4
219,3
55
54
314,0
65,7
53
57
27,4
213,0
58
59
255,1
52
27,4
219,4
219,4
51
50
220,0
27,4
49
I этап строительства – 1 квартал 2026
II этап строительства – 1 квартал 2027
Свободно
Свободно
Свободно
Свободно
Свободно
Свободно
Свободно
Свободно
Свободно
Свободно
258,8
27,9
27,9
66,9
27,9
27,9
27,9
66,9
27,9
66,9
1
2
3
4
5
6
7
8
10
9
Свободно
Свободно
Свободно
Свободно
Свободно
Свободно
Свободно
Свободно
Свободно
Свободно
27,9
27,9
66,9
27,9
27,9
258,8
258,8
27,9
66,9
27,9
11
12
13
14
15
16
17
18
20
19
шоурум / склад
статус
офис
шоурум
склад
Нажмите, чтобы посмотреть планировку
Свободно
Свободно
Свободно
Свободно
Свободно
Свободно
Свободно
Свободно
Свободно
Свободно
27,9
27,9
27,9
66,9
66,9
27,9
27,9
27,9
27,9
66,9
21
22
23
24
25
26
27
28
30
29
Свободно
Свободно
27,9
258,8
31
32
Agija Tiknuse
Менеджер по работе с клиентами
Оставьте заявку, и мы проконсультируем вас о доступных помещениях
Отправляя эту форму, вы соглашаетесь с нашей Политикой конфиденциальности и обработкой ваших персональных данных
Выберите свою площадь в инновационном деловом центре Риги
Телефон
email
Адрес офиса
G2E Stock Office©2025